11
$549,900 Sale
Listed 2 hours ago
Lot 2 High Street
· 3
· 2.5
· 0
· 2010
Key Facts
Key facts for Lot 2 High Street
Property Type
House, House
Parking
Garage: No, 0 parking
MLS #
1291160
Size
2010 sqft
Basement
-
Listed on
-
Lot size
-
Tax
-
Days on Market
-
Year Built
2025
Maintenance Fee
-
Description
OCEANFRONT IN TRINITY!!! A rare opportunity to own one of the most desirable locations on Newfoundland's Bonavista Peninsula! Nestled on the ocean's edge in the picturesque, historic town of Trinity, this new construction, traditional salt box awaits. With generous allowances, you will have creative... input to make this oceanfront oasis the home of your dreams. With 3 bedrooms and 2.5 bathrooms, spacious kitchen, living area and front deck, this home offers all of the modern amenities wrapped in the traditional architecture of the mid-1800s. This beautiful property will make the perfect vacation get-away, Airbnb, or year round retreat! Watch whales and eagles from the comfort of your home or stroll through the town and enjoy live music, theatre, shops, and culinary delights! Local breweries, coastal hiking, food and music festivals, all just minutes away from this exquisite piece of paradise! (id:10452)
Similar Properties (No results)
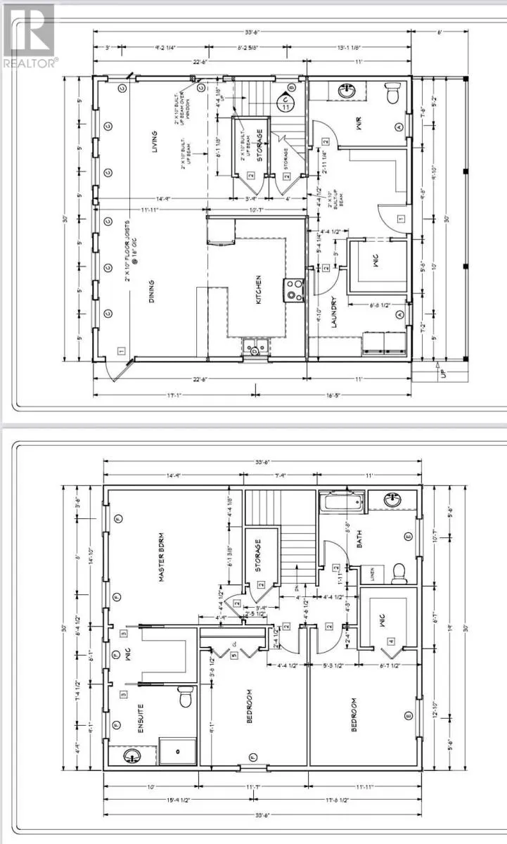
Room Types
Bath (# pieces 1-6)
-
Dimensions 10'7 x 11
116.42 sqft
Bath (# pieces 1-6)
-
Dimensions 11 x 7'6
82.5 sqft
Bedroom
-
Dimensions 11'11 x 12'10
152.93 sqft
Listing courtesy of: RE/MAX Eastern Edge Realty Ltd. Clarenville
This REALTOR.ca listing content is owned and licensed by REALTOR® members of The Canadian Real Estate Association.